19.07.2010
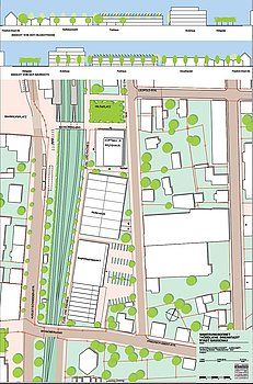
In der letzten Gemeinderatssitzung informierte Bürgermeisterin Brigitte Schäuble das Gremium über die zurückliegende Sitzung der Projektgruppe "Stadtkernsanierung und Stadtentwicklung". Daraus ging hervor, dass die Projektgruppe am Ärztehaus, das im südlichen Bahnhofsareal bei der Bahnquerung (s. Übersichtsplan) entstehen soll, noch einzelne, leichte Verbesserungsvorschläge (z. B. was die genaue Ausrichtung des Gebäudes angeht) hat. Die Projektgruppe hatte sich darüber hinaus die Frage gestellt, ob ein Parkdeck unterhalb des Ärztehauses erforderlich sei. Dafür spreche: 1. der Eigenbedarf des Ärztehauses, 2. bisherige Parkmöglichkeiten im dortigen Bereich würden optimiert werden, 3. die Nähe des Bahnhofs würde "Park & Ride" ermöglichen, 4. das rechnerische Parkplatzdefizit in der gesamten Innenstadt würde verbessert werden. Im Hinblick auf das weitere Vorgehen in dieser Sache sollen die Pläne weiter konkretisiert, Kosten ermittelt und mögliche Zuschüsse aus dem Städtebauförderungsprogramm erfragt werden. Zudem will man sich Gedanken machen, ob eine Interimslösung erforderlich (Stellplätze vor Errichtung des Parkdecks) und welcher Zeitplan zu veranschlagen ist.
Die bei der Stadt eingegangene Anfrage, im Bereich des Nördlichen Bahnhofsareals (das sich nicht im Besitz der Stadt, sondern in jenem des Bundeseisenbahnvermögens befindet) ein Elektrofachmarkt zu errichten, begrüßte die Projektgruppe (zumal das auch gut mit dem Einzelhandel- und Zentrenkonzept der Stadt Gaggenau harmonieren würde). Ein Bebauungsplan für diesen Bereich ist noch erforderlich. An einen Elektrofachmarkt im nördlichen Bahnhofsareal (zwischen Bahnquerung und Theodor-Bergmann-Straße) hat die Projektgruppe folgende Anforderungen: 1. die Grundfläche soll etwa so groß wie jene des geplanten Ärztehauses sein, 2. das Gebäude soll vier Vollgeschosse haben, 3. die Architektur soll ansprechend sein, 4. die Fassade qualitätsvoll, 5. die Zugänge zum öffentlichen Platz bei der Bahnquerung sollen gegeben sein.
Auf der Tagesordnung der Projektgruppe hatte auch das Beleuchtungskonzept der unteren Hauptstraße gestanden. Hier empfehlen die Fachleute die Leuchte "Residenza MD" (s. Foto). Dafür spreche, dass dieser Leuchtentyp 1. kein Zeitgeistmodell sei, 2. sich gut mit dem vorhandenen Bestand vertrage, 3. eine Bespielung möglich mache (z. B. ein Lichtervorhang als Weihnachtsbeleuchtung oder eine Fahne / ein Plakat als Hinweis auf einen Event), 4. Aufenthaltsqualität schaffe und 5. ökologisch gut verträglich sei (jeder Mast verfügt über zwei Halogenleuchten à 35 Watt, die - getrennt voneinander - nachts vorübergehend abgeschaltet werden könnten, um Energie zu sparen).
Pressestelle Stadt Gaggenau
Manfred Mayer M.A. (verantwortlich)
Telefon: (07225) 962-404
E-Mail: presse@stadt.gaggenau.de
Fax: (07225) 962-409
Internet: www.gaggenau.de
